SWVG mewobau
Ansicht 1
1 / 2
sofort001-3100-1506

schöne 3-Raum-Wohnung

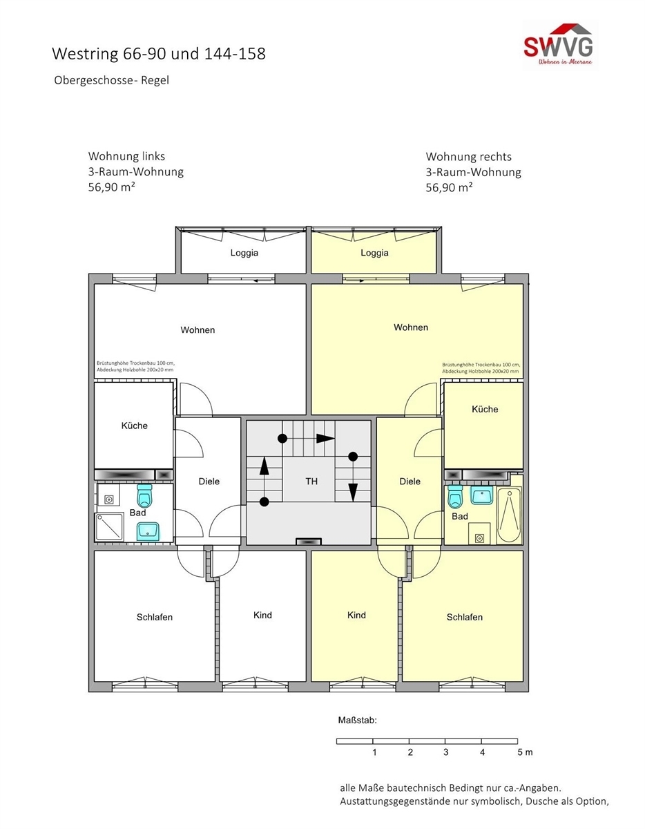
location_on Westring 078, 08393 Meerane

bed3Zi.
square_foot56.9
layers3.WG,re.
deckLoggia

Kaltmiete

308,00 €

Warmmiete

468,00 €

picture_as_pdf PDF

Objektdaten

Objekt-Nr.001-3100-1506
WohngebietWestring
Verfügbar absofort
Zimmer3
Wohnfläche56.9 m²
Etage/Lage3.WG,re.
Balkon/LoggiaLoggia
Wanne/DuscheSitzbadewanne
AbstellraumKellerabteil
AufzugNein
StellplatzNein

Ausstattung

check_circle Loggiacheck_circle Sitzbadewannecheck_circle Kellerabteilcheck_circle Modernisiert

Wohnung im modernisierten/renovierten Zustand.

Wohngebäude & Lage

Wohngebäude

modernes Wohnquartier

Wohnlage

Wohngebiet am südwestlichen Rand von Meerane nahe dem Gewerbegebiet, viele Grünflächen, Spielplatz, gute Verkehrsanbindung

location_on Westring

Mietübersicht

Kaltmiete308,00 €
Nebenkosten46,00 €
Heizkosten114,00 €
Warmmiete468,00 €

Energieausweis

Ausweistyp

Verbrauchsausweis

Heizungsart

Zentralheizung

Befeuerung

Fernwärme

Baujahr

1971

Standort

progress_activityKarte wird geladen...

Kontakt aufnehmen

support_agent

Ihr Ansprechpartner

Anke Litzba